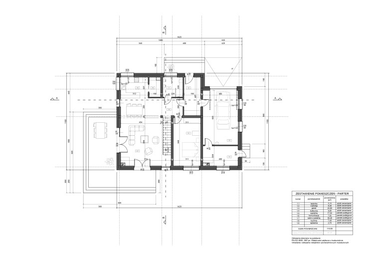
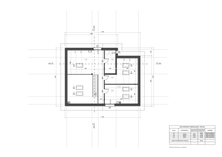
Parterowy dom jednorodzinny z dużym garażem, obszerną antresolą, otwartą kuchnią z narożnym oknem i jednobiegowymi schodami. W narożniku salonu znajduje się kominek.
/ projekt koncepcyjny i budowlany
/ projekt: 2017
/ lokalizacja: Bieruń




Kadry z budowy:
TAGI: dom jednorodzinny, dom z użytkowym poddaszem, budynek jednorodzinny z tarasem, okna dachowe, prosty dom jednorodzinny, budynek niepodpiwniczony, z otwartą kuchnią, home office, dom z antresolą, dom z garażem wbudowanym, zabezpieczenie budynku na szkody górnicze, miejscowy plan zagospodarowania przestrzennego, decyzja o warunkach zabudowy
BIURO ARCHITEKTONICZNE W OKOLICACH: Chełm Śląski, Tychy, Bieruń, Mikołów, Pszczyna, Kobiór, Katowice, Chorzów, Gliwice, Świętochłowice, Lędziny, Imielin, Wola, Międzyrzecze, Bojszowy, Świerczyniec, Jaroszowice, Mysłowice, Oświęcim, Przeciszów, Jankowice, Chełmek, Chybie, województwo śląskie, województwo małopolskie, Śląsk, Małopolska, powiat bieruńsko – lędziński

