
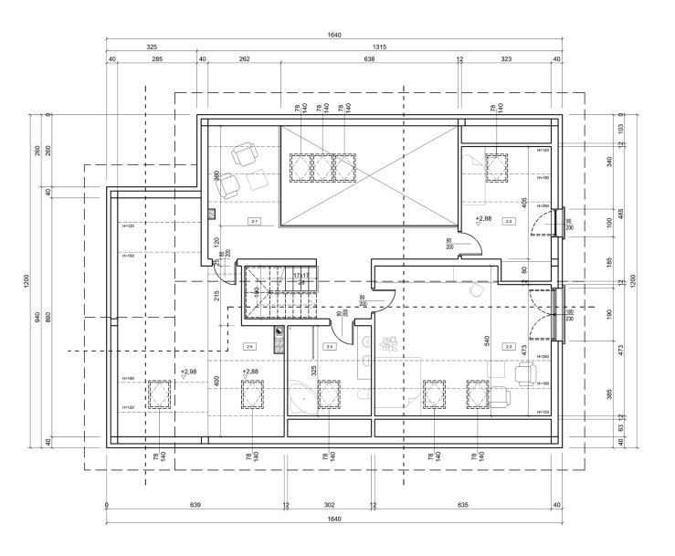
Dom ergonomiczny i dopasowany do potrzeb właściciela, w pełni funkcjonalny. Na uwagę zasługuje obszerna antresola, duże przeszklenia od strony ogrodu oraz otwarta kuchnia z narożnym oknem i widokiem na piękną okolicę.
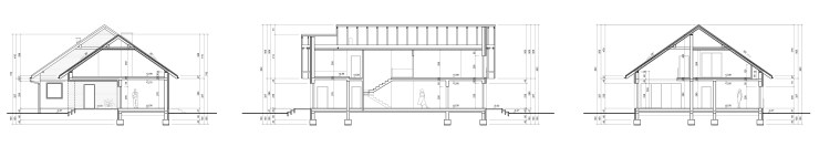
Zsyp na pranie ułatwia życie mieszkańcom poddasza, ostało także wydzielone domowe biuro z osobnym wejściem. Zadaszony taras pozwala na chwilę wytchnienia nawet w deszczowe dni, a chłodna kolorystyka elewacji koresponduje z nowoczesną płaską dachówką ceramiczną na dachu. Budynek jest niepodpiwniczony, posiada dwuspadowy dach i użytkowe poddasze.
/ projekt koncepcyjny i budowlany
/ projekt: 2016
/ lokalizacja: Chełm Śląski
/ status: w trakcie realizacji




TAGI: dom z antresolą, dom z użytkowym poddaszem, budynek jednorodzinny z zadaszonym tarasem, dom z podcieniami, dom z gabinetem, dom z narożnym oknem, budynek niepodpiwniczony, z otwartą kuchnią, home office, zabezpieczenie budynku na szkody górnicze, miejscowy plan zagospodarowania przestrzennego, decyzja o warunkach zabudowy
ARCHITEKT W OKOLICACH: Chełm Śląski, Tychy, Bieruń, Mikołów, Pszczyna, Kobiór, Katowice, Chorzów, Gliwice, Świętochłowice, Lędziny, Imielin, Wola, Międzyrzecze, Bojszowy, Świerczyniec, Jaroszowice, Mysłowice, Oświęcim, Przeciszów, Jankowice, Chełmek, Chybie, województwo śląskie, województwo małopolskie, Śląsk, Małopolska, powiat bieruńsko – lędziński
